香蕉篩是隆中重工十多年振動設備設計和制造經驗與現代設計和制造工藝結合的杰作。整機結構經過隆中重工工程師團隊優化設計,采用高強度的耐磨材質及加工工藝標準,適用于石料廠、礦山、冶金、建材等多個領域。目前,隆中重工香蕉篩已經在多個砂石料項目中應用,產量大、運行穩定等優勢得到了用戶的一致好評。
進料粒度≤300mm
【應用領域】石料廠、礦山、冶金、建材、公路、鐵路等
【適用物料】大、中粒級物料

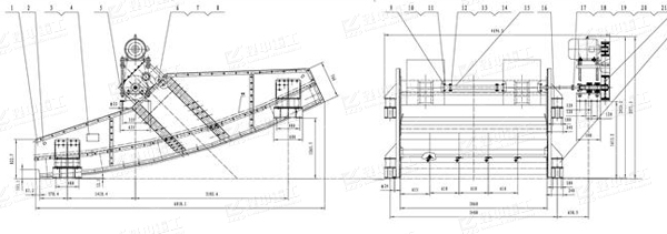
香蕉篩又名直線等厚振動篩,因于形狀長的像香蕉而得名,它的篩箱近似于香蕉形狀,篩面由幾個角度不同的區段組成。與同樣規格傳統篩比較,香蕉型振動篩分機處理量更大,其單位面積處理量為傳統分級篩的1.5~2倍。是目前性能較好的一種振動篩。主要用于細粒含量高的大、中粒級物料的粒度分級,亦可用于脫水、脫介和脫泥等作業(細粒指粒度小于篩孔尺寸一半以下的顆粒)。

產品原理:
香蕉振動篩主要由篩箱、篩網、激振器、減振彈簧和下座架等組成。它是由電動機和激振器作為振動源,激振器主要是由偏心軸、皮帶輪、軸承及軸承座等組成,激振器安裝在篩箱側板上,并由電動機通過三角皮帶或軟連接與其相連,電動機帶動偏心軸旋轉,產生離心慣性力,迫使篩箱振動。

在入料端有一斜坡面,先以34°開始,緊接著角度下降到大約為10°的出料端為止。篩面采用不同傾角的折線形式,從入料端到出料端物料層厚度是不變。各段篩面上物料量與流速比值穩定、料層較高,呈現均勻狀態篩分效率顯著提高,比相同面積篩分機的處理量提高1-2倍,對于細粒含量高,特別是物料中料度占分級粒度尺寸小于1/2的物料含量較大時,香蕉型振動篩分機具有較高的篩分效率。
主要優勢:
1、結構簡單緊湊、強度高、受力分布均衡、安全系數大;
2、振動參數設置合理,避開篩體各級固有頻率,減少共振影響;
3、長壽命,篩體使用壽命高達10年,激振器使用壽命大于6萬小時;
4、重量輕,功率消耗少,振動強度大(9-12mm),篩分效率高(>95%);
5、選用大廠家篩面配置,篩分效率高,物料處理能力大;
6、品種齊全,能夠充分滿足不同物料特性和處理量的篩分工藝要求;
7、篩機操作維護簡單、性價比高、備件充足、服務及時周到。
相關文章:細沙篩選是選滾筒篩好還是振動篩好呢?


